Thomas Center Premier Senior
Click to Call: 907-538-9995

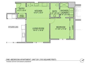
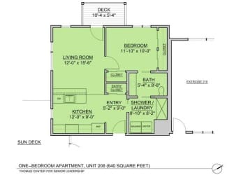
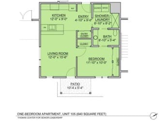
One Bedroom Apartments